Продається квартира Київ, Дніпровський, вул. Сосюри, 6 (№ 213-130-366)

Ціна: 73 000 $
Характеристики
| Ціна: | 73 000 $ |
|---|---|
| № об'єкта: | 213-130-366 |
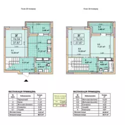
| Кімнат: | 3 |
| Поверх: | 25 / 26 ліфт |
| Площа: | 76 / - / 11 м2 |
Адреса: Київ, Дніпровський, вул. Сосюри, 6
Об'єкт № 213-130-366 Ю.Г.
Пропонуємо на продаж 3 кімнатну квартиру в комфортному та безпечному ЖК Дніпровська Мрія, за адресою: вул. Сосюри, 6, яка розташована на 25 поверсі 26 поверхового будинку.
Будинок (монолітно-каркасний / комфорт-клас)
Раціональне планування. Квартира внутрішня.
Лічильники на все.
Зручна транспортна розв`язка, що дозволить швидко дістатись у будь-який куточок міста. Вся інфраструктура в пішій доступності.
Тихий та затишний двір, зони для відпочинку та паркування.
Квартира чекає свого творчого покупця для втілення своїх мрій у реальність!
Агентство нерухомості 'Житломанія'
Працюючи з нами, ви отримуєте перевірене житло від реальних орендодавців, та підтримку на всіх етапах угоди.
Звяжіться з нами для організації перегляду та додаткової інформації.
Комісія за послуги 4% за фактом підписання угоди.















