Продається квартира Київ, Дарницький, Ревуцького, 54, м. Харківська (№ 213-142-085)

Ціна: 93 000 $
Характеристики
Ціна: | 93 000 $ |
---|---|
№ об'єкта: | 213-142-085 |
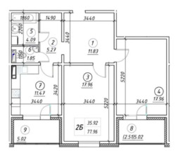
Кімнат: | 2 розд |
Поверх: | 3 / 25 |
Площа: | 78 / 35,9 / 12 м2 |
Санвузол: | 1 роздільний |
Балкон: | лоджія |
Адреса: Київ, Дарницький, Ревуцького, 54, м. Харківська
Р.Д. 213-142-085
Пропонуємо на продаж 2 кімнатну квартиру в комфортному та безпечному ЖК Ревуцький , за адресою: вул. Ревуцького, 54 , яка розташована на 3 поверсі 25 поверхового будинку.
Будинок (монолітно-каркасний / комфорт-клас)
Раціональне планування. Квартира внутрішня. Гардеробна.
Квартира вільна, готова до продажу, один власник, зареєстрованих немає.
Зручна транспортна розв`язка, що дозволить швидко дістатись у будь-який куточок міста. Вся інфраструктура в пішій доступності.
Тихий та затишний двір, зони для відпочинку та паркування.
Квартира чекає свого творчого покупця для втілення своїх мрій у реальність!
Агентство нерухомості 'Житломанія'
Працюючи з нами, ви отримуєте перевірене житло від реальних орендодавців, та підтримку на всіх етапах угоди.
Звяжіться з нами для організації перегляду та додаткової інформації.
Комісія за послуги 4% за фактом підписання угоди.