Продається квартира Київ, Оболонський, Калнишевського, 6 (№ 213-147-465)

Ціна: 64 500 $
Характеристики
Ціна: | 64 500 $ |
---|---|
№ об'єкта: | 213-147-465 |
Кімнат: | 1 |
Поверх: | 24 / 24 ліфт |
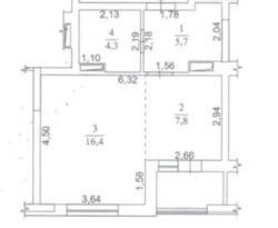
Площа: | 38 / - / 8 м2 |
Санвузол: | 1 сумісний |
Адреса: Київ, Оболонський, Калнишевського, 6
СЄ 213-147-465
Продається чудова 1 кім квартира в Оболонському районі , за адресою: вул. Петра Калнишевського 6 . Загальна площа 38 м2, 24 поверх, 24 поверхового будинку.
Затишна та світла квартира в спальному районі столиці, що ідеально підходить для комфортного проживання.
Розвинена мережа наземного громадського транспорту. Розвинена інфраструктура – магазини, парки, ресторани, аптеки, державні та приватні заклади лікування та освіти.
Якщо Вас зацікавило - телефонуйте і ми Вам організуємо перегляд.
Допоможемо придбати і продати нерухомість.
Агентство нерухомості 'Житломанія'
Працюючи з нами, ви отримуєте перевірене житло від реальних покупців, та підтримку на всіх етапах угоди.Комісія за послуги 4% за фактом підписання угоди.