Продається квартира Київ, Дарницький, Кам'янська, 127 (№ 213-147-863)

Ціна: 75 000 $
Характеристики
Ціна: | 75 000 $ |
---|---|
№ об'єкта: | 213-147-863 |
Кімнат: | 1 |
Поверх: | 4 / 12 |
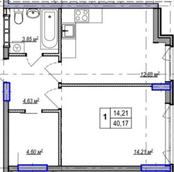
Площа: | 40 / - / 12 м2 |
Адреса: Київ, Дарницький, Кам'янська, 127
ЛМ 213-147-863 Продається чудова 1-кімнатна квартира за адресою: вул. Кам'янська, 127. Загальна площа 40 m2, 4 поверх, 12-поверхового будинку
Затишна та світла квартира, що ідеально підходить для комфортного проживання.
Розвинена мережа громадського транспорту та інфраструктура.
Телефонуйте і ми організуємо для вас перегляд.
Допоможемо придбати і продати нерухомість.
АН 'Житломанія'
Працюючи з нами, ви отримуєте перевірене житло від реальних продавців, та підтримку на всіх етапах угоди. Комісія за послуги 4% за фактом підписання угоди.