Продається квартира Київ, Печерський (№ 213-149-010)

Ціна: 238 000 $
Характеристики
Ціна: | 238 000 $ |
---|---|
№ об'єкта: | 213-149-010 |
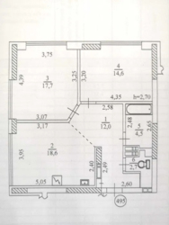
Кімнат: | 2 |
Поверх: | 17 / 24 ліфт |
Площа: | 67 / 31.2 / 17.7 м2 |
Санвузол: | 2 роздільний |
Додатково: | новобудова |
Адреса: Київ, Печерський
№ 213-149-010
Продається чудова 2 кімнатна квартира в Печерському районі, ЖК Підвисоцького. За адресою: вул. Кахи Бендукідзе 2. Квартира на 18 поверсі 21 поверхового будинку.
Панорамні вікна, орієнтованими на південь і захід.
У квартирі зроблений новий дизайнерський ремонт із високоякісних матеріалів для себе. Усе продумано до деталей:
• Підлога (крім санвузлів) — Alpha Vinyl Quick-Step
• Стіни — фарбування з декоративним оздобленням
• Стелі — гіпсокартон і натяжна тканина
• Двері та плінтуси — пофарбований МДФ
• Санвузли — натуральний камінь, преміум-сантехніка
Встановлені вбудовані меблі, кухонний гарнітур, велика шафа-купе та повний комплект побутової техніки: холодильник, мікрохвильова піч, духова шафа, варильна поверхня, витяжка, посудомийна й пральна машини, 2 бойлери, 3 кондиціонери, фільтр для води. Усе це залишається новому власнику!
Затишна та світла квартира в престижному районі столиці, що ідеально підходить для комфортного проживання сім'ї.
Розвинена мережа наземного громадського транспорту. Розвинена інфраструктура – магазини, парки, ресторани, аптеки, державні та приватні заклади лікування та освіти.
Якщо Вас зацікавило - телефонуйте і ми Вам організуємо перегляд.
Допоможемо придбати і продати нерухомість.
Агентство нерухомості 'Житломанія'
Працюючи з нами, ви отримуєте перевірене житло від реальних покупців, та підтримку на всіх етапах угоди. Комісія за послуги 2% за фактом підписання угоди.