Продається квартира Київ, Подільський, Вишгородська 45 Г (№ 213-155-205)

Ціна: 126 700 $
Характеристики
Ціна: | 126 700 $ |
---|---|
№ об'єкта: | 213-155-205 |
Кімнат: | 3 |
Поверх: | 25 / 27 ліфт |
Площа: | 94 / 26.54 / 36 м2 |
Санвузол: | 2 роздільний |
Додатково: | новобудова |
Адреса: Київ, Подільський, Вишгородська 45 Г
№ 213-155-205
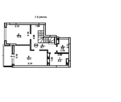
Продається чудова 3 кімнатна квартира в Подільському районі, ЖК Паркове Місто. За адресою: вул. Вишгородська 45 Г. Квартира на 25 поверсі 27 поверхового будинку.
Розташовується на 25-26 поверхах.
ЧЕРЕЗ 2 МІС документам буде БІЛЬШЕ 3х РОКІВ.
1 поверх вміщує велику кухню студію 38м2 + балкон 3.8м2 який можна об‘єднати, санузл, коридор.
2 й поверх - дві кімнати (спальня, дитяча), гардеробна, санузл, + ще один великий балкон.
Сходи залиті.
Індивідуальні лічильники тепла, електрики води, світла, не високий тариф за прибудинкову територію.
Будинок зданий в експлуатацію 2022р, всі документи на руках без ремонту.
Затишна та світла квартира в престижному районі столиці, що ідеально підходить для комфортного проживання сім'ї.
Розвинена мережа наземного громадського транспорту. Розвинена інфраструктура – магазини, парки, ресторани, аптеки, державні та приватні заклади лікування та освіти.
Якщо Вас зацікавило - телефонуйте і ми Вам організуємо перегляд.
Допоможемо придбати і продати нерухомість.
Агентство нерухомості 'Житломанія'
Працюючи з нами, ви отримуєте перевірене житло від реальних покупців, та підтримку на всіх етапах угоди. Комісія за послуги 4% за фактом підписання угоди.