Продається квартира Київ, Подільський, Данченка Сергія, 3 (№ 213-165-257)

Ціна: 119 000 $
Характеристики
Ціна: | 119 000 $ |
---|---|
№ об'єкта: | 213-165-257 |
Кімнат: | 3 |
Поверх: | 11 / 25 ліфт |
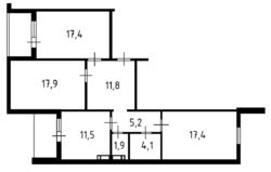
Площа: | 94 / 53 / 14 м2 |
Санвузол: | 2 роздільний |
Балкон: | балкон |
Адреса: Київ, Подільський, Данченка Сергія, 3
СЄ 213-165-257
Продається чудова 3 кім квартира в Подільському районі, в комфортному та безпечному ЖК Крістер Град , за адресою: вул. Сергія Данченка 3. Загальна площа 94 м2, 11 поверх, 25 поверхового будинку.
Затишна та світла квартира в спальному районі столиці, що ідеально підходить для комфортного проживання.
Зроблений якісний ремонт в кухні, в санвузлах та одній кімнаті, проведена нова електира по всій квартирі. Дві кімнати та хол з ремонтом від будівельників.
В квартирі залишаються вбудовані кухонні меблі з технікою, є посудомийна машинка, два кондиціонери, бойлер, встановлені лічильники на опалення.
Розвинена мережа наземного громадського транспорту. Розвинена інфраструктура – магазини, парки, ресторани, аптеки, державні та приватні заклади лікування та освіти.
Якщо Вас зацікавило - телефонуйте і ми Вам організуємо перегляд.
Допоможемо придбати і продати нерухомість.
Агентство нерухомості 'Житломанія'
Працюючи з нами, ви отримуєте перевірене житло від реальних покупців, та підтримку на всіх етапах угоди.Комісія за послуги 4% за фактом підписання угоди.