Продається квартира Київ, Дніпровський, Краківська 10 (№ 213-169-312)

Ціна: 59 000 $
Характеристики
Ціна: | 59 000 $ |
---|---|
№ об'єкта: | 213-169-312 |
Кімнат: | 2 |
Поверх: | 4 / 5 |
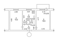
Площа: | 43 / 30 / 13 м2 |
Адреса: Київ, Дніпровський, Краківська 10
ЛМ 213-169-312 Продається чудова 2-кімнатна квартира за адресою: вул. Краківська 10. Загальна площа 43 m2, 4 поверх, 5-поверхового будинку
Дві окремі кімнати — зручно для сім’ї або орендарів.
Квартира в гарному стані — чисто, акуратно, доглянуто, з меблями. Побутова техніка: холодильник, пральна машина, духова шафа, витяжка, газова плита, бойлер та кондиціонер. Санвузол у доброму стані. Охайний під’їзд, приємні сусіди.
Розвинена мережа громадського транспорту та інфраструктура.
Телефонуйте і ми організуємо для вас перегляд.
Допоможемо придбати і продати нерухомість.
АН 'Житломанія'
Працюючи з нами, ви отримуєте перевірене житло від реальних продавців, та підтримку на всіх етапах угоди. Комісія за послуги 4% за фактом підписання угоди.