Продається квартира Київ, Святошинський, проспект Берестейський, 67, м. Нивки (№ 213-176-246)

Ціна: 185 000 $
Характеристики
Ціна: | 185 000 $ |
---|---|
№ об'єкта: | 213-176-246 |
Кімнат: | 5 |
Поверх: | 17 / 18 |
Площа: | 148 / 98.3 / 9.2 м2 |
Санвузол: | 2 |
Балкон: | тераса |
Адреса: Київ, Святошинський, проспект Берестейський, 67, м. Нивки
213-176-246
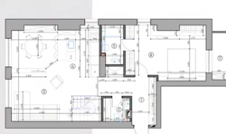
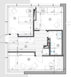
Пропонуємо на продаж 5 кімнатну дворівневу квартиру в ЖК San Francisco Creator House за адресою: пр-т Берестейський 67, яка розташована на 17 поверсі 18-поверхового будинку.
Квартира після будівельників.
Роскошнi апартаменти за дуже вигiдною цiною.
Перший поверх 70м2
Другий поверх вiльне планування 52м2. З вихідом на власну 3-х сторонню терассу.
Велика тераса 80м2. Коефiцієнт 0.3 тераси рахуеться, тож загальна площа 147м2. (Реальна 200м2).
Агентство нерухомості 'Житломанія'
Працюючи з нами, ви отримуєте перевірене житло від реальних продавців, та підтримку на всіх етапах угоди.
Звяжіться з нами для організації перегляду та додаткової інформації.
Комісія за послуги 4% за фактом підписання угоди.