Продається квартира Київ, Печерський, Євгена Коновальця, 30, 30, м. Палац Україна (№ 213-179-435)

Ціна: 139 999 $
Характеристики
Ціна: | 139 999 $ |
---|---|
№ об'єкта: | 213-179-435 |
Кімнат: | 2 розд |
Поверх: | 8 / 26 ліфт |
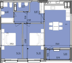
Площа: | 70 / 38 / 21 м2 |
Санвузол: | 2 сумісний |
Балкон: | лоджія |
Додатково: | новобудова |
Адреса: Київ, Печерський, Євгена Коновальця, 30, 30, м. Палац Україна
Об'єкт № 213-179-435
Продаємо квартиру 70 м2 (2 спальні по 15 м2 + кухня-вітальня 21 м2) на 8 поверсі в 1 секції, що знаходиться в жк бізнес-класу Maxima Residence за адресою Євгена Коновальця, 30 (Щорса), поруч метро Печерська та Палац Україна. Дуже приваблива пропозиція: 2100$ за 1 кв.м. В будинку є гостьовий паркінг та безпосередньо паркінг в будинку. 1 та 2 секція вже збудовані. Будинок вводиться в експлуатацію в 1-2 кварталі 2026 року. В компексі сплановано 3 поверхи комерційної нерухомості, тому вся необхідна інфраструктура буде в будинку. В сусідньому будинку в жк Skyline знаходиться Сільпо.
Вид обєкта: Новобудова;
Назва ЖК: Maxima Residence;
Тип стін: Цегляний;
Клас житла: Бізнес;
Планування: Роздільна;
Cанвузол: 2 і більше;
Опалення: Комбіноване;
Ремонт: Після будівельників;
Комфорт: Відеоспостереження, Кондиціонер, Охорона території, Грузовий ліфт, Сигналізація, Автономний електрогенератор, Гардероб, Балкон, лоджія, Ванна, Консерж, Ліфт, Підземний паркінг, Гостьовий паркінг, Панорамні вікна, Паркувальне місце;
Комунікації: Асфальтована дорога, Центральна каналізація, Електрика, Вивіз відходів, Центральний водопровід;
Інфраструктура (до 500 метрів): Відділення банку, банкомат, Кінотеатр, театр, Відділення пошти, Бювет, Ресторан, кафе, Школа, Супермаркет, ТРЦ, Зупинка транспорту, Центр міста, Аптека, Лікарня, поліклініка, Дитячий садок, Ринок, Метро, Парк, зелена зона, Дитячий майданчик;
Ландшафт (до 1 км.): Пагорби, Парк, Річка;
Якщо Вас зацікавило - телефонуйте і ми Вам організуємо перегляд.
Допоможемо придбати і продати нерухомість.
Агентство нерухомості 'Житломанія'
Працюючи з нами, ви отримуєте перевірене житло від реальних продавців та підтримку на всіх етапах угоди.Комісія за послуги 3 % за фактом підписання угоди.