Продається квартира Київ, Солом'янський, Чоколівський бульвар, 10 (№ 213-189-174)

Ціна: 116 500 $
Характеристики
Ціна: | 116 500 $ |
---|---|
№ об'єкта: | 213-189-174 |
Кімнат: | 2 |
Поверх: | 6 / 10 ліфт |
Площа: | 65 / - / 21 м2 |
Санвузол: | 1 сумісний |
Балкон: | балкон |
Адреса: Київ, Солом'янський, Чоколівський бульвар, 10
СЄ 213-189-174
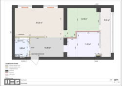
Продається чудова 2 кім квартира в Солом'янському районі, за адресою: Чоколівський бульвар 10. Загальна площа 65 m2, 6 поверх, 10 поверхового будинку.
Затишна та світла квартира в столиці, що ідеально підходить для комфортного проживання.
Зроблено перепланування з реконструкцією, узаконено, є новий техпаспорт.
Дві повноцінних спальні з панорамними вікнами на балкон, кухня - вітальня, великий панорамний балкон, на який є вихід з двох спалень.
Заміна та ремонт всіх стояків з водою, каналізацією та опаленням, зроблена шумоізоляція. Замінена та розведена електрика з розумним будинком. Установлено всі автомати Abb, також захист від низької та високо напруги. На поверсі є невелика спільна комора, куди виведено лінію для аварійного живлення (інверктор та залізо фосфатні батареї)
Розвинена мережа наземного громадського транспорту. Розвинена інфраструктура – магазини, парки, ресторани, аптеки, державні та приватні заклади лікування та освіти.
Якщо Вас зацікавило - телефонуйте і ми Вам організуємо перегляд.
Допоможемо придбати і продати нерухомість.
Агентство нерухомості 'Житломанія'
Працюючи з нами, ви отримуєте перевірене житло від реальних покупців, та підтримку на всіх етапах угоди.Комісія за послуги 4% за фактом підписання угоди.