Продається квартира Київ, Солом'янський, Мокра (Кудряшова) 16 (№ 213-192-989)

Ціна: 99 000 $
Характеристики
Ціна: | 99 000 $ |
---|---|
№ об'єкта: | 213-192-989 |
Кімнат: | 1 |
Поверх: | 19 / 25 |
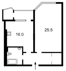
Площа: | 60,4 / 25,5 / 16 м2 |
Адреса: Київ, Солом'янський, Мокра (Кудряшова) 16
ЛМ 213-192-989 Продається чудова 1-кімнатна квартира за адресою: вул. Мокра (Кудряшова) 16 в ЖК Пори року. Загальна площа 60,4 m2, 19 поверх, 25-поверхового будинку
Затишна та світла квартира, що ідеально підходить для комфортного проживання.
Розвинена мережа громадського транспорту та інфраструктура.
Телефонуйте і ми організуємо для вас перегляд.
Допоможемо придбати і продати нерухомість.
АН 'Житломанія'
Працюючи з нами, ви отримуєте перевірене житло від реальних продавців, та підтримку на всіх етапах угоди. Комісія за послуги 4% за фактом підписання угоди.