Продається квартира Київ, Подільський, ЖК Варшавський 3, 10.1 (№ 213-193-788)

Ціна: 93 000 $
Характеристики
Ціна: | 93 000 $ |
---|---|
№ об'єкта: | 213-193-788 |
Кімнат: | 3 |
Поверх: | 12 / 23 ліфт |
Площа: | 75 / - / 19 м2 |
Санвузол: | 2 роздільний |
Адреса: Київ, Подільський, ЖК Варшавський 3, 10.1
СЄ 213-193-788
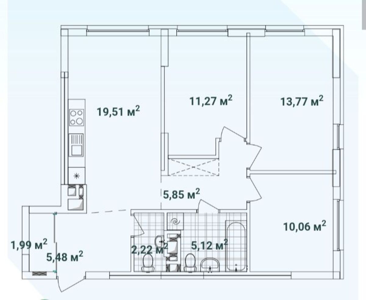
Продається 3 кім квартира в Подільському районі, в комфортному та безпечному ЖК Варшавський 3, за адресою: вул. Всеволода Змієнка, буд. 10.1. Загальна площа 75 m2, 12 поверх, 23 поверхового будинку. Будинок 10.1 введенний в експлуатацію.
Квартира в спальному районі столиці, що ідеально підходить для комфортного проживання сім'ї. Стан квартири після будівельників. Окремі кімнати, кухня, 2 санвузли, гардеробна.
У квартирі лазерна стяжка, частково розведене освітлення, підключене опалення, броньовані двері, металопластикові вікна, лічильники на воду та електроенергію.
Власне резервне живлення будинку, ліфти працюють навіть під час відключення електроенергії.
Продаж по Переуступці. Оформлення через відділ продажу забудовника, витрати з оформлення переуступки сплачує Продавець.
Розвинена мережа наземного громадського транспорту. Розвинена інфраструктура – магазини, парки, ресторани, аптеки, державні та приватні заклади лікування та освіти.
Якщо Вас зацікавило - телефонуйте і ми Вам організуємо перегляд.
Допоможемо придбати і продати нерухомість.
Агентство нерухомості 'Житломанія'
Працюючи з нами, ви отримуєте перевірене житло від реальних покупців, та підтримку на всіх етапах угоди.Комісія за послуги 4% за фактом підписання угоди.