Продається квартира Київ, Академіка Заболотного, 15 Г 7секц. (№ 213-194-613)

Ціна: 93 000 $
Характеристики
Ціна: | 93 000 $ |
---|---|
№ об'єкта: | 213-194-613 |
Кімнат: | 3 |
Поверх: | 7 / 25 |
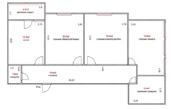
Площа: | 87 / 46 / 12 м2 |
Санвузол: | 2 роздільний |
Балкон: | балкон |
Адреса: Київ, Академіка Заболотного, 15 Г 7секц.
МП213-194-613
Пропонуємо на продаж 3 кімнатну квартиру в комфортному та безпечному ЖК Теремки , за адресою: вул.Академіка Заболотного , 15 Г 7секц , яка розташована на 7 поверсі 25 поверхового будинку
Характеристики квартири:
• Площа: 87,2 м²
• Кількість кімнат: 3
• Поверх: 7/25
• Тип будинку: монолітно-каркасний
• Опалення: автономне (в будинку)
Стан та ремонт: від будівельників
Інфраструктура та локація:
• Транспорт: 2 хвилини пішки до зупинки громадського транспорту та маршруток сполученням до Академмістечка, Деміївської, Либідської та інших напрямків
• Магазини, супермаркети: Thrash! і менші магазинчики на території ЖК
• Школи, садки: Гімназія №236 в 6 хвилинах пішки, Заклад дошкільної освіти №182 в 7 хвилинах пішки.
• Парковка/паркінг: біля будинку та підземний паркінг.
Зручна транспортна розв`язка, що дозволить швидко дістатись у будь-який куточок міста. Вся інфраструктура в пішій доступності.
Тихий та затишний двір, зони для відпочинку та паркування.
Квартира чекає свого творчого покупця для втілення своїх мрій у реальність!
Агентство нерухомості 'Житломанія'
Працюючи з нами, ви отримуєте перевірене житло від реальних орендодавців, та підтримку на всіх етапах угоди.
Звяжіться з нами для організації перегляду та додаткової інформації.
Комісія за послуги 4% за фактом підписання угоди.