Продається квартира Київ, Подільський, Некрасова Віктора, 6 (№ 213-195-694)

Ціна: 89 000 $
Характеристики
Ціна: | 89 000 $ |
---|---|
№ об'єкта: | 213-195-694 |
Кімнат: | 2 |
Поверх: | 2 / 26 ліфт |
Площа: | 77 / - / 20 м2 |
Санвузол: | 1 |
Балкон: | тераса |
Адреса: Київ, Подільський, Некрасова Віктора, 6
СЄ 213-195-694
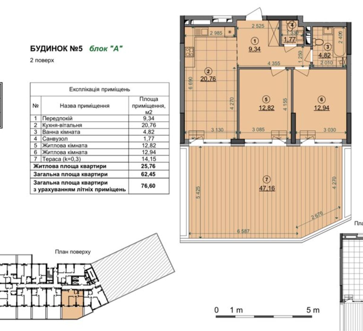
Продається 2 кім квартира (євротрьошка) в Подільському районі, в комфортному та безпечному ЖК Діброа парк , за адресою: вул. Віктора Некрасова 6. Загальна площа 77 , 2 поверх, 26 поверхового будинку, будинок 5 зданий в експлуатацію.
Квартира в спальному районі столиці, стан після будівельників. 2 спальні та велика кухня-вітальня з виходом на терасу.
Переуступка.
Розвинена мережа наземного громадського транспорту. Розвинена інфраструктура – магазини, парки, ресторани, аптеки, державні та приватні заклади лікування та освіти.
Якщо Вас зацікавило - телефонуйте і ми Вам організуємо перегляд.
Допоможемо придбати і продати нерухомість.
Агентство нерухомості 'Житломанія'
Працюючи з нами, ви отримуєте перевірене житло від реальних покупців, та підтримку на всіх етапах угоди.Комісія за послуги 4% за фактом підписання угоди.