Продається квартира Київ, Коноплянська, 22 (№ 213-196-392)

Ціна: 95 000 $
Характеристики
Ціна: | 95 000 $ |
---|---|
№ об'єкта: | 213-196-392 |
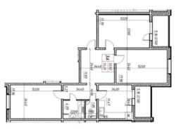
Кімнат: | 3 |
Поверх: | 21 / 25 |
Площа: | 93 / - / 18 м2 |
Санвузол: | 1 роздільний |
Балкон: | балкон |
Адреса: Київ, Коноплянська, 22
МП 213-196-392
Пропонуємо на продаж кімнатну квартиру в комфортному та безпечному ЖК Навігатор-2, за адресою: вул.Коноплянська , 22 , яка розташована на 21 поверсі 25 поверхового будинку
Зручна транспортна розв`язка, що дозволить швидко дістатись у будь-який куточок міста. Вся інфраструктура в пішій доступності.
Тихий та затишний двір, зони для відпочинку та паркування.
Квартира чекає свого творчого покупця для втілення своїх мрій у реальність!
Агентство нерухомості 'Житломанія'
Працюючи з нами, ви отримуєте перевірене житло від реальних орендодавців, та підтримку на всіх етапах угоди.
Звяжіться з нами для організації перегляду та додаткової інформації.
Комісія за послуги 4% за фактом підписання угоди.