Продається квартира Михайла Бойчука, 23, Київ, Печерський, м. Звіринецька (№ 213-203-178)
Ціна: 99 500 $

Михайла Бойчука, 23, Київ, Печерський, м. Звіринецька
Характеристики
| Ціна: | 99 500 $ |
|---|---|
| № об'єкта: | 213-203-178 |
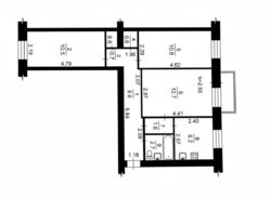
| Кімнат: | 3 розд |
| Поверх: | 4 / 5 |
| Площа: | 56 / - / 6 м2 |
| Санвузол: | сумісний |
| Балкон: | балкон |
Опис
213-203-178
Пропонуємо на продаж 3 кімнатну квартиру за адресою: вул.Михайла Бойчука 23, яка розташована на 4 поверсі 5-поверхового будинку.
ПРО КВАРТИРУ:
• Площа 56м² з функціональним плануванням.
• Частково мебльована.
• Всі 3 кімнати окремі.
• Кухня окрема, з можливістю об'єднання з вітальнею.
• Зручне планування на дві сторони будинку.
• Кімната з видом на Печерські липки, інші на зелений двір.
• Багато місця для зберігання. Дві окремі комори та антресолі.
• Газ, замінені батареї, пластикові вікна, вхідні двері.
• Новий, збільшений, засклений балкон.
БУДИНОК:
• Теплий цегляний будинок.
• Будинок з ОСББ.
• У під'їзді зроблений ремонт, нові вікна.
• Закритий двір, ворота, є місця для паркування.
• Тихі дружні сусіди.
РОЗТАШУВАННЯ:
• У пішій доступності м.Звіринецька та м.Видубичі.
• Зручна транспортна розв’язка.
• Затишні місця для прогулянок, Ботанічний сад імені Гришка.
• Поруч продуктові магазини, пошта, аптеки, кав’ярні.
• Пішій доступності поліклініка, дитячий садок та школи.
Агентство нерухомості 'Житломанія'
Працюючи з нами, ви отримуєте перевірене житло від реальних продавців, та підтримку на всіх етапах угоди.
Звяжіться з нами для організації перегляду та додаткової інформації.
Комісія за послуги 5% за фактом підписання угоди.














