Продається квартира Київ, Печерський, Іоанна Павла II, 12, 12, м. Либідська (№ 213-204-520)

Ціна: 225 000 $
Характеристики
| Ціна: | 225 000 $ |
|---|---|
| № об'єкта: | 213-204-520 |
| Кімнат: | 1 розд |
| Поверх: | 6 / 31 ліфт |
| Площа: | 62 / 18 / 30 м2 |
| Санвузол: | 1 сумісний |
| Балкон: | лоджія |
| Додатково: | новобудова |
Адреса: Київ, Печерський, Іоанна Павла II, 12, 12, м. Либідська
Об'єкт № 213-204-520
Продається чудова євродвушка в Печерському районі, в комфортному та безпечному ЖК майбутнього Taryan Tower! за адресою: вул. Іоанна Павла II, 12
Загальна площа 62 m2; 6 поверх, 31 поверхового монолітного будинку 2021 року.
Затишна та світла квартира в престижному районі столиці, що ідеально підходить для комфортного проживання сім'ї
Будинок #2 (збудований та введений в експлуатацію)
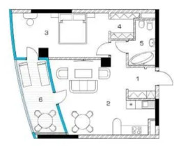
Планування:
-велика кухня-вітальня;
-спальня;
-велика ванна кімната;
-велика тераса.
перевага планувань в ЖК Taryan Tower - мінімум стін та перегородок для можливості втілити будь який дизайн з мінімальним переплануванням.
Лайфстайл-курорт TSARSKY зі спортивним залом, спа та саунами, а також двома басейнами для активного та розслабленого відпочинку.
- Пости цілодобової охорони, відеоспостереження та система персональних перепусток.
- Підземний паркінг з зарядками для електрокарів.
Розвинена мережа наземного громадського транспорту. Розвинена інфраструктура – магазини, парки, ресторани, аптеки, державні та приватні заклади лікування та освіти.
Якщо Вас зацікавило - телефонуйте і ми Вам організуємо перегляд.
Допоможемо придбати і продати нерухомість.
Агентство нерухомості 'Житломанія'
Працюючи з нами, ви отримуєте перевірене житло від реальних продавців та підтримку на всіх етапах угоди.Комісія за послуги
3 % за фактом підписання угоди.













