Продається квартира Київ, Солом'янський, Юнацька, 6 (№ 213-205-953)

Ціна: 173 000 $
Характеристики
| Ціна: | 173 000 $ |
|---|---|
| № об'єкта: | 213-205-953 |
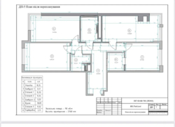
| Кімнат: | 3 |
| Поверх: | 9 / 9 ліфт |
| Площа: | 90 / - / 18 м2 |
| Санвузол: | 2 роздільний |
Адреса: Київ, Солом'янський, Юнацька, 6
СЄ 213-205-953
Продається чудова 3 кім квартира в Солом'янському районі, в комфортному та безпечному ЖК Parkland. , за адресою: вул. Юнацька 6 . Загальна площа 90м2, 9 поверх, 9 поверхового будинку.
Затишна та світла квартира в столиці, що ідеально підходить для комфортного проживання.
Три окремі кімнати, велика кухня із вбудованою технікою.
Право власності більше 3-Х років.
Індивідуальне газове опалення - двоконтурний котел.
Розвинена мережа наземного громадського транспорту. Розвинена інфраструктура – магазини, парки, ресторани, аптеки, державні та приватні заклади лікування та освіти.
Якщо Вас зацікавило - телефонуйте і ми Вам організуємо перегляд.
Допоможемо придбати і продати нерухомість.
Агентство нерухомості 'Житломанія'
Працюючи з нами, ви отримуєте перевірене житло від реальних покупців, та підтримку на всіх етапах угоди.Комісія за послуги 3% за фактом підписання угоди.





































