Продається квартира Київ, Голосіївський, Васильківська, 23/16 (№ 213-206-856)

Ціна: 125 000 $
Характеристики
| Ціна: | 125 000 $ |
|---|---|
| № об'єкта: | 213-206-856 |
| Кімнат: | 3 |
| Поверх: | 4 / 5 ліфт |
| Площа: | 77 / 40 / 35 м2 |
Адреса: Київ, Голосіївський, Васильківська, 23/16
СЄ 213-206-856
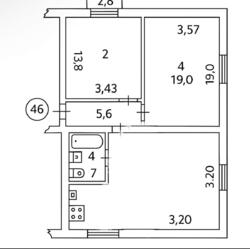
Продається чудова 3 кім квартира в Голосіївському районі, за адресою: вул. Васильківська 23/16. Загальна площа 77 m2, 4 поверх, 5 поверхового будинку.
Затишна та світла квартира в столиці, що ідеально підходить для комфортного проживання сім'ї.
Квартира з якісним дизайнерським ремонтом, не потребує жодних вкладень. Побутова техніка: посудомийна машина Bosch, електрофурнітура Gira, пральна машина, холодильник, витяжка SMEG, плита + духова шафа, бойлер
Простора кухня-вітальня 35 м², дві окремі спальні 19 м² та 13 м². Також велики балкон - 5 м2.
Висота стелі – 3 метри.
Розвинена мережа наземного громадського транспорту. Розвинена інфраструктура – магазини, парки, ресторани, аптеки, державні та приватні заклади лікування та освіти.
Якщо Вас зацікавило - телефонуйте і ми Вам організуємо перегляд.
Допоможемо придбати і продати нерухомість.
Агентство нерухомості 'Житломанія'
Працюючи з нами, ви отримуєте перевірене житло від реальних покупців, та підтримку на всіх етапах угоди.Комісія за послуги 4% за фактом підписання угоди.




















