Продається квартира Київ, Шевченківський, Павла Вірського, 45, м. Нивки (№ 213-213-338)

Ціна: 110 000 $
Характеристики
| Ціна: | 110 000 $ |
|---|---|
| № об'єкта: | 213-213-338 |
| Кімнат: | 3 см/рз |
| Поверх: | 5 / 5 |
| Площа: | 60 / 42.7 / 3 м2 |
| Санвузол: | роздільний |
| Балкон: | балкон |
Адреса: Київ, Шевченківський, Павла Вірського, 45, м. Нивки
213-213-338
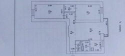
Пропонуємо на продаж 3 кімнатну квартиру за адресою: вул.Павла Вірського,45, яка розташована на 5 поверсі 5-поверхового будинку.
Двостороння, не кутова світла квартира, має якісний євроремонт, зроблене узаконене! перепланування.
Велика кухня - вітальня, 2 окремі! світлі та затишні кімнати та простора гардеробна. Проведено під час ремонту заміну усієї проводки, батарей, сантехніки.
Окремо відремонтували та захістили дах!!!
Підлога в кімнатах паркет, коридор та кухня кахель, є ділянки з теплим полом! Санвузол окремий!
Стан квартири - дуже хороший, житловий. Встановлені лічильники день - ніч, є бойлер, встановлена система відеонагляду! 3 кондиціонера! 3 шафи купе!
Будинок цегляний, дуже теплий в зимку. Система опалення централізоване, , комунікації включають газ!Будинок чистий охайний, сусіди чемні.
Квартира продаеться з меблями, готова до заселення.
Поряд вся потрібна інфраструктура, садочок, школа, поліклініка, магазини, ринок
До метро Нивки 10 хвилин пішки.
Агентство нерухомості 'Житломанія'
Працюючи з нами, ви отримуєте перевірене житло від реальних продавців, та підтримку на всіх етапах угоди.
Звяжіться з нами для організації перегляду та додаткової інформації.
Комісія за послуги 5% за фактом підписання угоди.





















