Продається квартира Київ, Олександра Олеся 9А (№ 213-215-120)

Ціна: 66 500 $
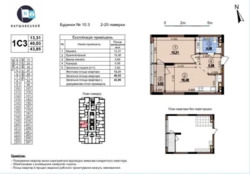
Характеристики
| Ціна: | 66 500 $ |
|---|---|
| № об'єкта: | 213-215-120 |
| Кімнат: | 1 |
| Поверх: | 25 / 25 |
| Площа: | 44 / - / 17 м2 |
| Санвузол: | 1 |
| Балкон: | лоджія |
Адреса: Київ, Олександра Олеся 9А
Р.Д. 213-215-120
Пропонуємо на продаж 1 кімнатну квартиру в комфортному та безпечному ЖК Варшавський 2 , за адресою: вул. Олександра Олеся, 9А , яка розташована на 25 поверсі 25 поверхового будинку.
Будинок (монолітно-каркасний / комфорт-клас)
Раціональне планування. Квартира внутрішня. Гардеробна.
Закрита територія.
Підземный паркінг.
Лічильники на все.
Автономне опалення.
Будинок введений в екплуатацію.
Перепоступка.
Зручна транспортна розв`язка, що дозволить швидко дістатись у будь-який куточок міста. Вся інфраструктура в пішій доступності.
Тихий та затишний двір, зони для відпочинку та паркування.
Квартира чекає свого творчого покупця для втілення своїх мрій у реальність!
Агентство нерухомості 'Житломанія'
Працюючи з нами, ви отримуєте перевірене житло від реальних орендодавців, та підтримку на всіх етапах угоди.
Звяжіться з нами для організації перегляду та додаткової інформації.
Комісія за послуги 4% за фактом підписання угоди.











