Продається квартира Родини Крістерів, 16, Київ, Подільський (№ 213-245-016)
Ціна: 79 300 $

Родини Крістерів, 16, Київ, Подільський
Характеристики
| Ціна: | 79 300 $ |
|---|---|
| № об'єкта: | 213-245-016 |
| Кімнат: | 1 |
| Поверх: | 5 / 25 ліфт |
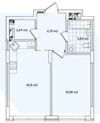
| Площа: | 48 / 15 / 18 м2 |
| Санвузол: | 1 |
| Балкон: | балкон |
Опис
СЄ 213-245-016
Продається 1 кім квартира в Подільському районі, в комфортному та безпечном ЖК Варшавський 2 , за адресою: вул. Родини Крістерів 16 . Загальна площа 48м2 , 5 поверх, 25 поверхового будинку.
Квартира в спальному районі столиці, що ідеально підходить для комфортного проживання. Стан квартири після будівельників.
Розвинена мережа наземного громадського транспорту. Розвинена інфраструктура – магазини, парки, ресторани, аптеки, державні та приватні заклади лікування та освіти.
Якщо Вас зацікавило - телефонуйте і ми Вам організуємо перегляд.
Допоможемо придбати і продати нерухомість.
Агентство нерухомості 'Житломанія'
Працюючи з нами, ви отримуєте перевірене житло від реальних покупців, та підтримку на всіх етапах угоди.Комісія за послуги 4% за фактом підписання угоди.






