Продається квартира Щербакова, 52, Київ, Подільський, м. Нивки (№ 213-250-695)
Ціна: 95 000 $

Щербакова, 52, Київ, Подільський, м. Нивки
Характеристики
| Ціна: | 95 000 $ |
|---|---|
| № об'єкта: | 213-250-695 |
| Кімнат: | 3 розд |
| Поверх: | 10 / 20 ліфт |
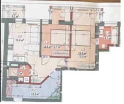
| Площа: | 58 / 30 / 16 м2 |
| Санвузол: | 2 роздільний |
| Балкон: | лоджія |
Опис
Об'єкт № 213-250-695
Продається чудова 3 кімнатна -квартира в Подільському районі, в комфортному та безпечному ЖК Перлина Нивок, за адресою: вул. Щербакова, 52
Загальна площа 58 m2; 10 поверх, 20 поверхового будинку 2011-2020 року
Затишна та світла квартира в престижному районі столиці, що ідеально підходить для комфортного проживання сім'ї
В квартирі повністю зроблений якісний ремонт.
Новому власнику залишиться лише меблювати на свій смак.
Квартира має кухню-студію, 2 спальні, 2 санвузли, балкон та терасу з панорамним видом на Київ.
Система опалення власна котельня. Тарифи як для населення.
Будинок введений в експлуатацію в 2011 році. Є ОСББ, підземний паркінг, ліфт, гостьовий паркінг, паркувальне місце та вантажний ліфт.
Поруч розташовані школи, дитячий садок, АТБ, спортивний та дитячий майданчики, бювет, ТРЦ Мегамаркет, парки, ринок 'Нивки'. Зручна транспортна розвязка.
Розвинена мережа наземного громадського транспорту. Розвинена інфраструктура – магазини, парки, ресторани, аптеки, державні та приватні заклади лікування та освіти.
Якщо Вас зацікавило - телефонуйте і ми Вам організуємо перегляд.
Допоможемо придбати і продати нерухомість.
Агентство нерухомості 'Житломанія'
Працюючи з нами, ви отримуєте перевірене житло від реальних продавців та підтримку на всіх етапах угоди.Комісія за послуги 4% за фактом підписання угоди.












