Продається квартира Михайла Бойчука 23, Київ, Печерський (№ 213-259-966)
Ціна: 94 900 $

Михайла Бойчука 23, Київ, Печерський
Характеристики
| Ціна: | 94 900 $ |
|---|---|
| № об'єкта: | 213-259-966 |
| Кімнат: | 3 |
| Поверх: | 4 / 5 |
| Площа: | 56 / - / 6 м2 |
Опис
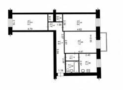
ЛМ 213-259-966 Продається чудова 3-кімнатна квартира за адресою: вул. Михайла Бойчука 23. Загальна площа 56 m2, 4 поверх, 5-поверхового будинку
Розглядаємо готівкову та без готівкову оплату.
3 кімнати окремі. Кухня окрема, з можливістю об'єднання з вітальнею. Зручне планування на дві сторони будинку.
Кімната з видом на Печерські липки, інші на зелений двір.
Багато місця для зберігання. Дві окремі комори та антресолі.
Газ, замінені батареї, пластикові вікна, вхідні двері.
Новий, збільшений, засклений балкон.
Теплий цегляний будинок, ОСББ.
У під'їзді зроблений ремонт, нові вікна.
Закритий двір, ворота, є місця для паркування.
Тихі дружні сусіди.
Розташована в одному з найзеленіших районів у центрі Києва, поруч з Ботанічним садом та метро 'Звіринецька'. Поруч у пішій доступності поліклініка, дитячий садок, школа та метро. Є місця для паркування та тихий закритий двір.
Телефонуйте і ми організуємо для вас перегляд.
Допоможемо придбати і продати нерухомість.
АН 'Житломанія'
Працюючи з нами, ви отримуєте перевірене житло від реальних продавців, та підтримку на всіх етапах угоди. Комісія за послуги 4% за фактом підписання угоди.










