Продається квартира Заболотного, 1Б, Київ, Голосіївський (№ 213-265-974)
Ціна: 115 000 $

Заболотного, 1Б, Київ, Голосіївський
Характеристики
| Ціна: | 115 000 $ |
|---|---|
| № об'єкта: | 213-265-974 |
| Кімнат: | 2 розд |
| Поверх: | 22 / 36 |
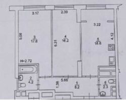
| Площа: | 67 / 33.8 / 18.6 м2 |
| Санвузол: | роздільний |
| Балкон: | лоджія |
Опис
213-265-974
Пропонуємо на продаж 2 кімнатну квартиру в ЖК Метрополіс, за адресою: вул. Академіка Заболотного,1Б, яка розташована на 22 поверсі 36-поверхового будинку.
Стан від забудовника.
Функціональне планування загальна 67.1, житлова 33.8, кухня 18.6. Стеля 3м.
Вікна виходять на Іподром.
Будинок оснащений п'ятьма ліфтами.
У ЖК функціонують різноманітні комерційні приміщення, територія цілодобовою охороняється, є підземний паркінг, власна паркова зона площею 2 Га.
Навколо ЖК розвинена інфраструктура, дитячий садок, фітнес клуб тощо.
Поруч з ЖК метро Теремки або метро Іподром. Близькість до центру.
Розвинуто інфраструктуру поблизу самого комплексу: ВДНГ, ТЦ Магелан, тенісні корти, льодовий стадіон, іподром, парк
Агентство нерухомості 'Житломанія'
Працюючи з нами, ви отримуєте перевірене житло від реальних продавців, та підтримку на всіх етапах угоди.
Зв'яжіться з нами для організації перегляду та додаткової інформації.
Комісія за послуги 4% за фактом підписання угоди.








