Продається квартира Бойчука, 23, Київ (№ 213-302-621)
Ціна: 94 000 $

Бойчука, 23, Київ
Характеристики
| Ціна: | 94 000 $ |
|---|---|
| № об'єкта: | 213-302-621 |
| Кімнат: | 3 |
| Поверх: | 4 / 5 |
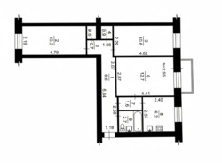
| Площа: | 56 / - / 6 м2 |
Опис
ОІ № 213-302-621 Продається чудова 3 квартира в Печерському районі, в комфортному та безпечному будинку , за адресою:вул. Бойчука 23 , Загальна площа 56,0 m2, 4 поверх, 5 поверхового будинку.
Кімната з видом на Печерські липки, інші на зелений двір. Кухня окрема, з можливістю об'єднання з вітальнею.Багато місця для зберігання. Дві окремі комори та антресолі. Газ, замінені батареї, пластикові вікна, вхідні двері.Новий, збільшений, засклений балкон.Теплий цегляний будинок з ОСББ. У під'їзді зроблений ремонт, нові вікна. Закритий двір, ворота, є місця для паркування. Порядні дружні сусіди.Розташована в одному з найзеленіших районів у центрі Києва,
У пішій доступності м.Звіринецька та м.Видубичі.
Зручна транспортна розвязка. Затишні місця для прогулянок, Ботанічний сад імені Гришка. Поруч продуктові магазини, пошта, аптеки, кавярні, поліклініка, дитячий садок та школи.
Чудовий варіант в одному з найкомфортніших районів Києва.
Затишна та світла квартира в престижному районі столиці, що ідеально підходить для комфортного проживання сім'ї
Розвинена мережа наземного громадського транспорту. Розвинена інфраструктура – магазини, парки, ресторани, аптеки, державні та приватні заклади лікування та освіти.
Якщо Вас зацікавило - телефонуйте і ми Вам організуємо перегляд.
Допоможемо придбати і продати нерухомість.
Агентство нерухомості 'Житломанія'
Працюючи з нами, ви отримуєте перевірене житло від реальних продавців, та підтримку на всіх етапах угоди.Комісія за послуги 4% за фактом підписання угоди.









