Продається квартира Тростянецька, 49, Київ, Дарницький (№ 213-308-302)
Ціна: 62 650 $

Тростянецька, 49, Київ, Дарницький
Характеристики
| Ціна: | 62 650 $ |
|---|---|
| № об'єкта: | 213-308-302 |
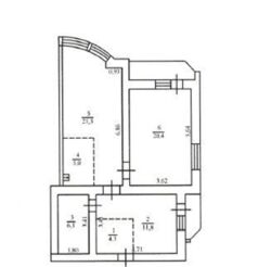
| Кімнат: | 2 розд |
| Поверх: | 15 / 17 |
| Площа: | 75 / - / 20 м2 |
| Санвузол: | 1 сумісний |
| Балкон: | лоджія |
Опис
Р.Д. 213-308-302
Пропонуємо на продаж 2 кімнатну квартиру в комфортному та безпечному районі Києва, за адресою: вул. Тростянецька, 49 , яка розташована на 15 поверсі 17 поверхового будинку.
75 метрів квадратних, велика кухня студія, 2 окремих кімнати та великий санвузол. Дім утеплений та потужний.
Квартира дуже відова, на Парк партизанської слави та вулицю тростянецьку. Стан квартири - під капітальний ремонт. Усі демонтажні роботи зроблені, сміття вивезено. Вже куплений деякі будівельні матеріали , вони залишаються в подарунок.
Зручна транспортна розв`язка, що дозволить швидко дістатись у будь-який куточок міста. Вся інфраструктура в пішій доступності.
Тихий та затишний двір, зони для відпочинку та паркування.
Квартира чекає свого творчого покупця для втілення своїх мрій у реальність!
Агентство нерухомості 'Житломанія'
Працюючи з нами, ви отримуєте перевірене житло від реальних орендодавців, та підтримку на всіх етапах угоди.
Звяжіться з нами для організації перегляду та додаткової інформації.
Комісія за послуги 4% за фактом підписання угоди.








